Мы вам перезвоним или напишем
Пожалуйста оставьте свои контактные данные и напишите,, какая информация вас интересует.
Мы вам перезвоним или ответим по электронной почте.
Мы вам перезвоним или ответим по электронной почте.
Спасибо! Ваше сообщение получено
Мы вам перезвоним или напишем
Пожалуйста оставьте свои контактные данные и напишите,, какая информация вас интересует.
Мы вам перезвоним или ответим по электронной почте.
Мы вам перезвоним или ответим по электронной почте.
Спасибо! Ваше сообщение получено
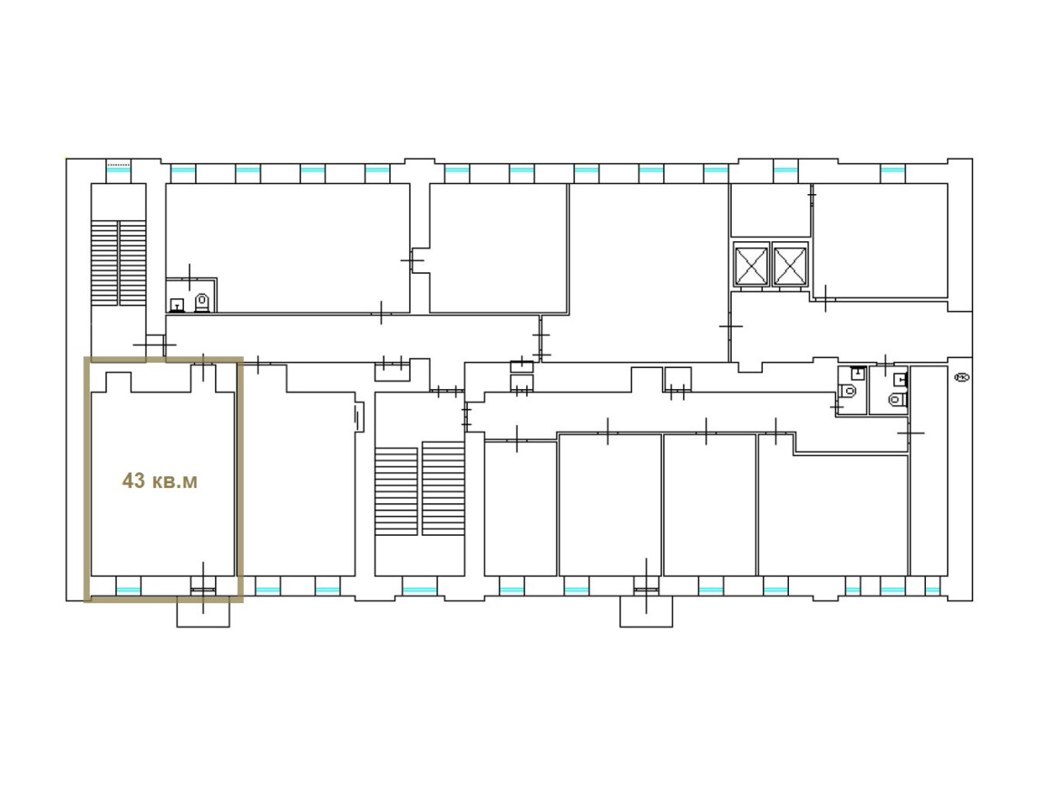
Офис 43 кв. м
ЦИАН ID 51424992
ПРЯМАЯ АРЕНДА
в бизнес-центре класса B+
по адресу ул. Гиляровского, д. 4, стр. 5
Посмотреть офис можно в рабочие часы:
ПН-ЧТ с 9:00 до 18:00
ПТ с 9:00 до 16:45
Узнать цену и договориться о просмотре:
+7 965 224 97 40
info@start-cbs.ru
ПРЯМАЯ АРЕНДА
в бизнес-центре класса B+
по адресу ул. Гиляровского, д. 4, стр. 5
- офисное помещение площадью 43 кв. м на втором этаже
- с ремонтом, готово к въезду
- высокие потолки
- установлен кондиционер
- предоставляем юридический адрес бесплатно
- предоставляем гостевую парковку
- всё включено
Посмотреть офис можно в рабочие часы:
ПН-ЧТ с 9:00 до 18:00
ПТ с 9:00 до 16:45
Узнать цену и договориться о просмотре:
+7 965 224 97 40
info@start-cbs.ru
О бизнес-центре на Сухаревской
Офисы в аренду в историческом центре Москвы
Общие характеристики бизнес-центра
- Класс бизнес-центра — В+
- Этажность здания — 4 этажа
- Расстояние до станции метро Сухаревская — 2 минуты пешком
- Расстояние до Садового кольца — 70 метров
- Расстояние до станции метро Проспект Мира — 10 минут пешком
- Расстояние до станции метро Цветной бульвар — 15 минут пешком
- Расстояние до Кремля — 35 минут пешком
- Состояние здания — после капитального ремонта
Услуги арендаторам
- предоставление юридического адреса
- цифровая связь
- высокоскоростной доступ в Интернет
- круглосуточная охрана с выводом на милицейский пост
- охраняемая автомобильная парковка
- комплексная уборка офисов
- в бизнес-центре работает нотариус
Пакет услуг от «Билайн»:
- Microsoft Office 365 (набор офисных средств корпоративного уровня)
- услуги связи и интернет
- цифровое телевидение для бизнеса
- услуга «Виртуальная АТС»
Расположение бизнес-центра:
Москва, улица Гиляровского, дом 4, строение 5
Рядом с метро Сухаревская, второе здание вдоль улицы Гиляровского от Садового кольца, сразу после Театра Олега Табакова